Дом 15
Успешно занимаемся проектированием, строительством, изысканиями с 2013 года. В нашей компании работают профессионалы, которые оттачивают свое мастерство ежедневно.
Ключевые особенности:
☺ Полная готовность к проживанию после монтажа

☺ Индивидуальный подход к каждому клиенту
Планировка:
Жилая площадь:
182 м
2
Спальни
Кухня-гостиная
Санузел
Котельная
Гардеробная
Визуализация представлена в ознакомительных целях. Для получения детальной информации о проекте или создания проекта в соответствии с вашими требованиями, пожалуйста, оставьте заявку
Визуализация представлена в ознакомительных целях. Для получения детальной информации о проекте или создания проекта в соответствии с вашими требованиями, пожалуйста, оставьте заявку
Визуализация представлена в ознакомительных целях. Для получения детальной информации о проекте или создания проекта в соответствии с вашими требованиями, пожалуйста, оставьте заявку
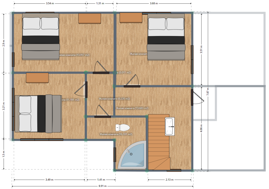
1 этаж
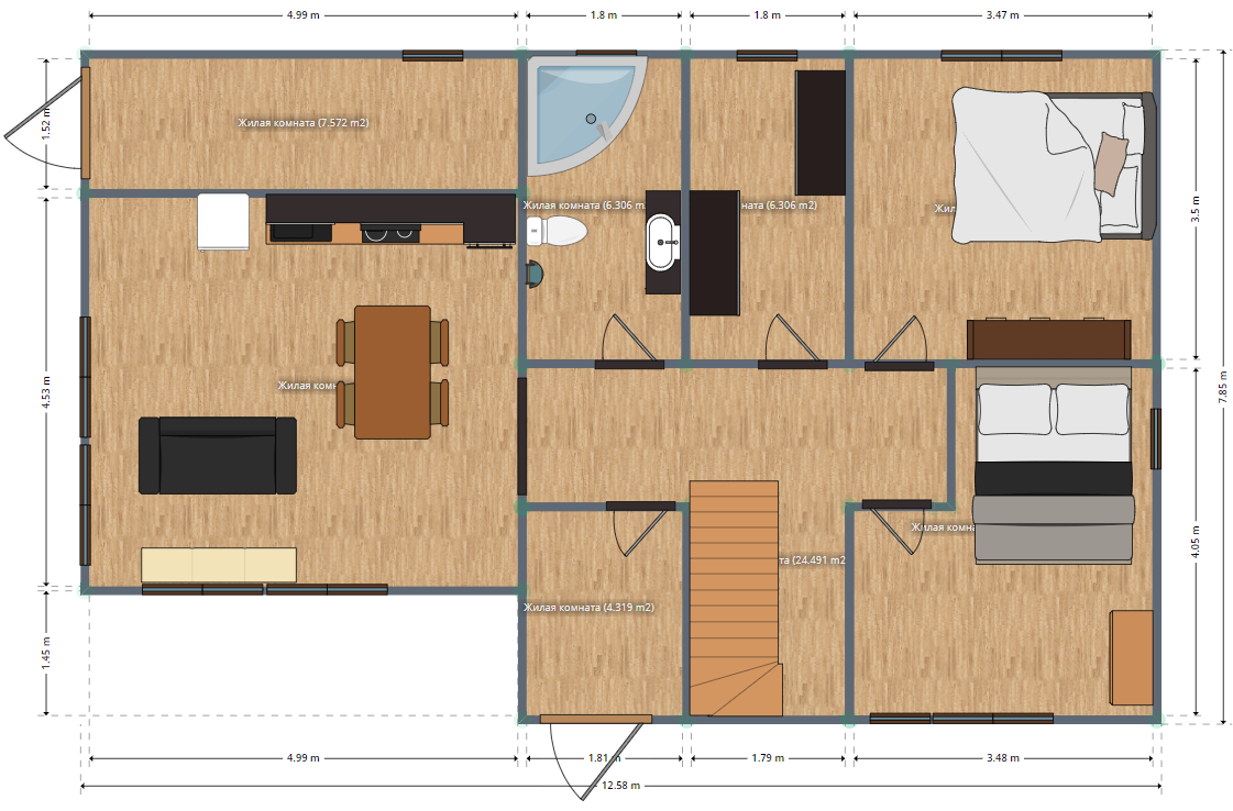
2 этаж
Фасады
Доска камерной сушки
Для каркаса используется только сухая калиброванная доска. Она не гниет и не меняет свою геометрию в процессе эксплуатации дома.

Вся доска обязательно обрабатывается антисепотическими составами, которые предотвращают ее гниение, появление плесени и жуков.
Утепление
В качестве утепления мы используем профессиональную линейку минерального утеплителя плитами по 50 мм.

Чтобы избежать появления мостиков холода, в процессе строительства мы используем перекрестное утепление. То есть слой утепления нашивают поперек другого, тем самым закрывая стыки стоек каркаса, основного утепления и обвязку перекрытий.
Оставьте свой номер телефона и мы перезвоним Вам
Или свяжитесь с нами в соц.сетях